Casa
de nueva construcción
en venta
en Canet de Mar
Canet de Mar
-
m2
280
-
Habitaciones
4
-
Baños
3
-
Parking
Casa de obra nueva en venta – Diseño moderno y eficiente
Descubre esta espectacular vivienda de 280 m², con amplios espacios, acabados de calidad y un diseño pensado para el confort y la eficiencia energétic...
Casa de obra nueva en venta – Diseño moderno y eficiente
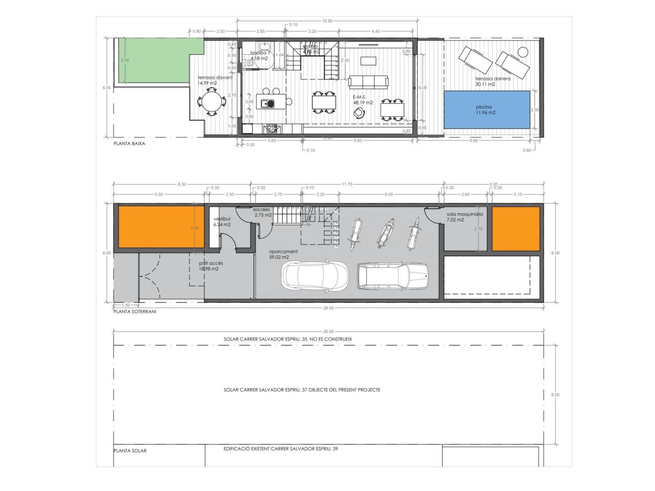
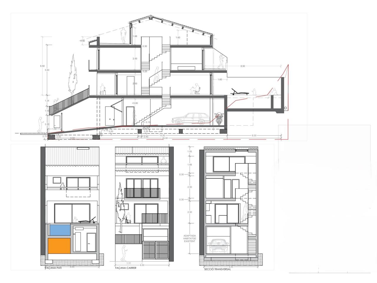
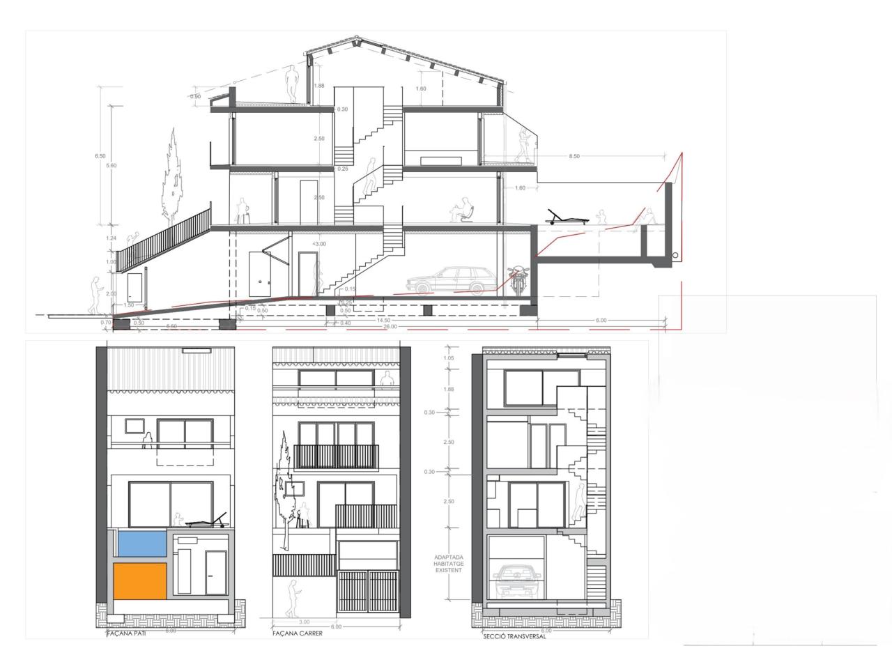
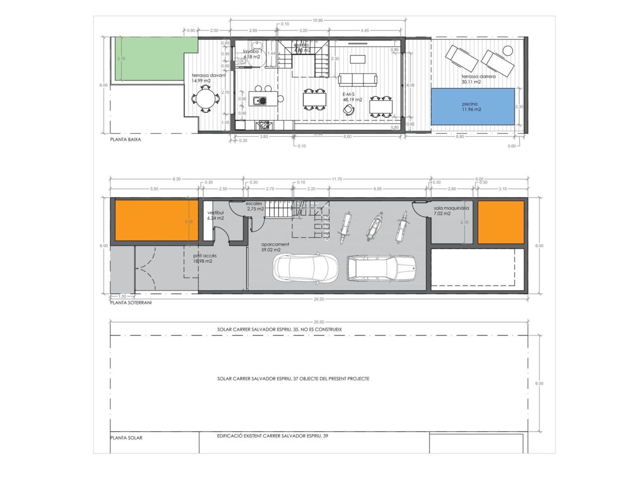
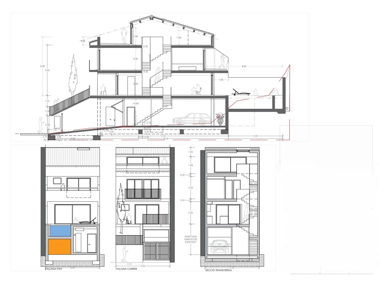
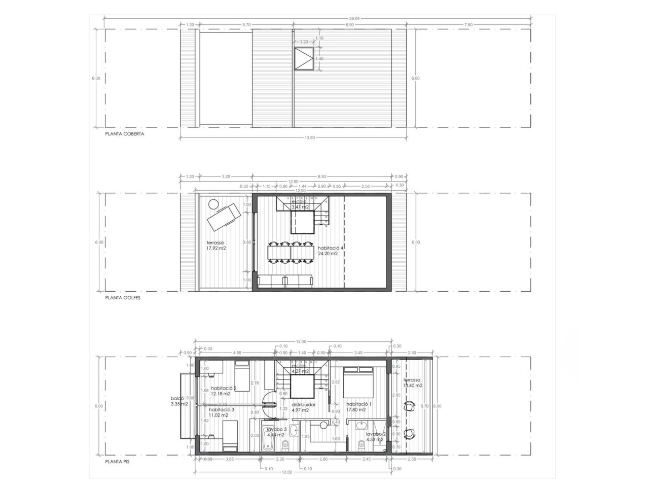
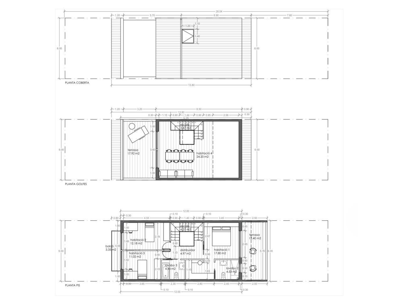
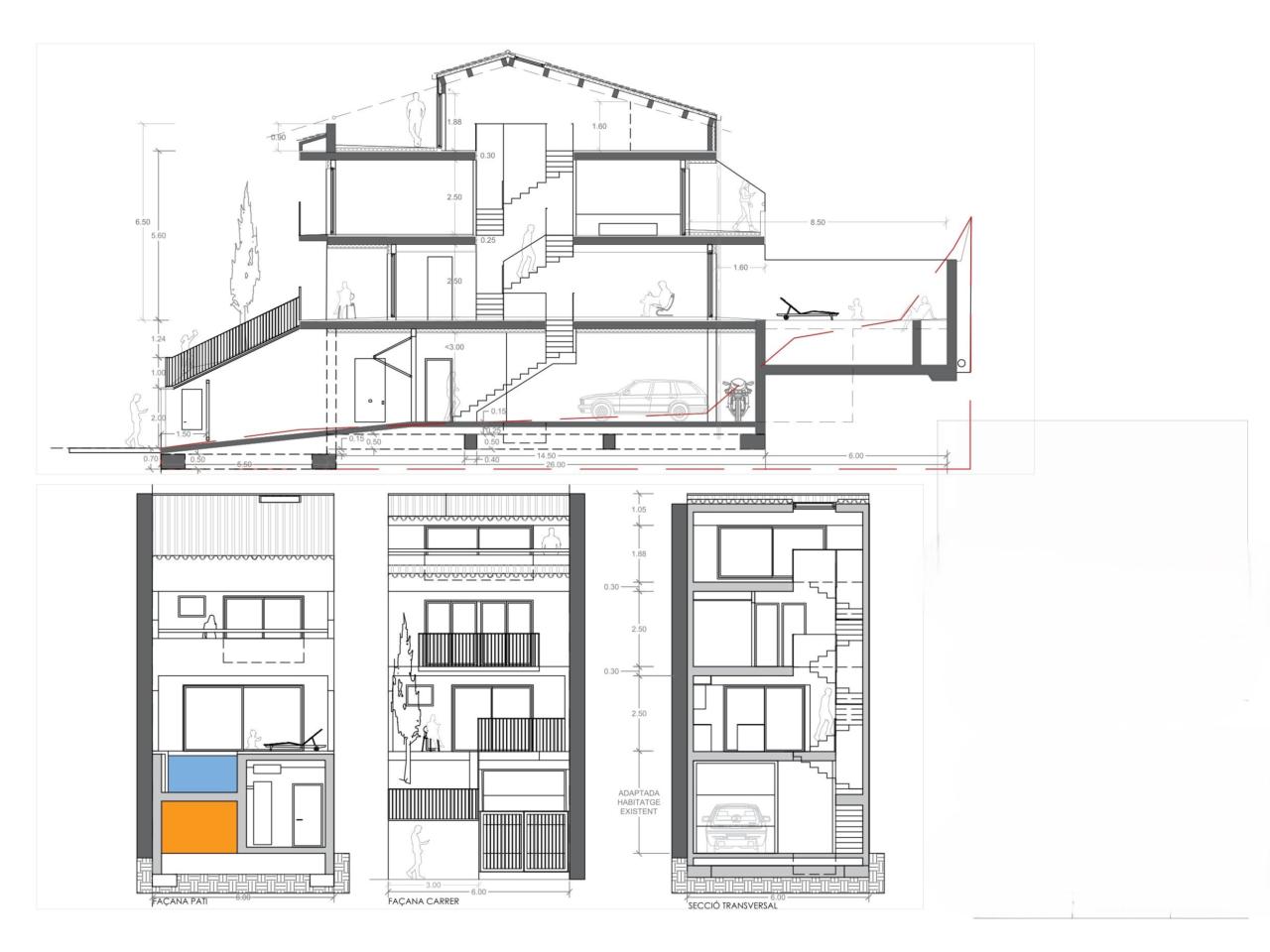
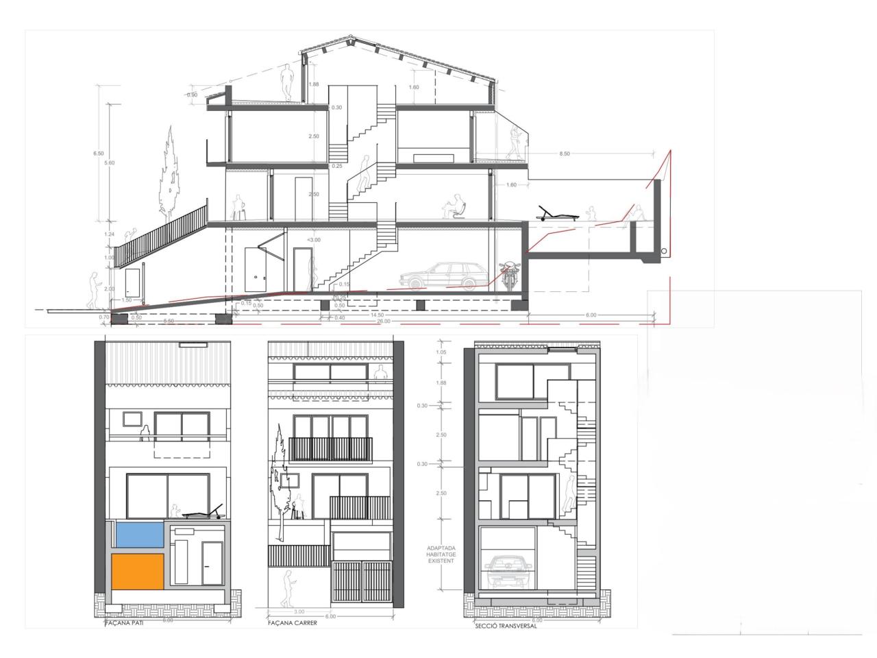
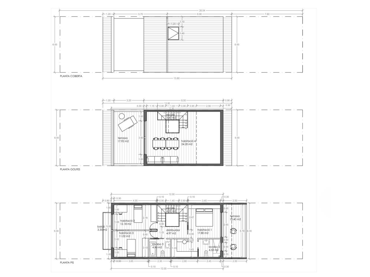
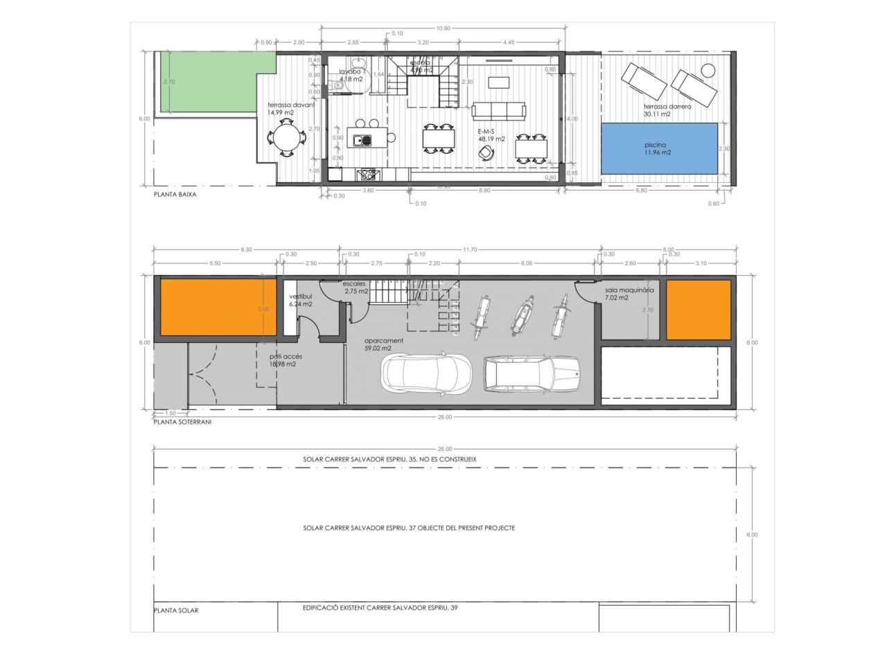
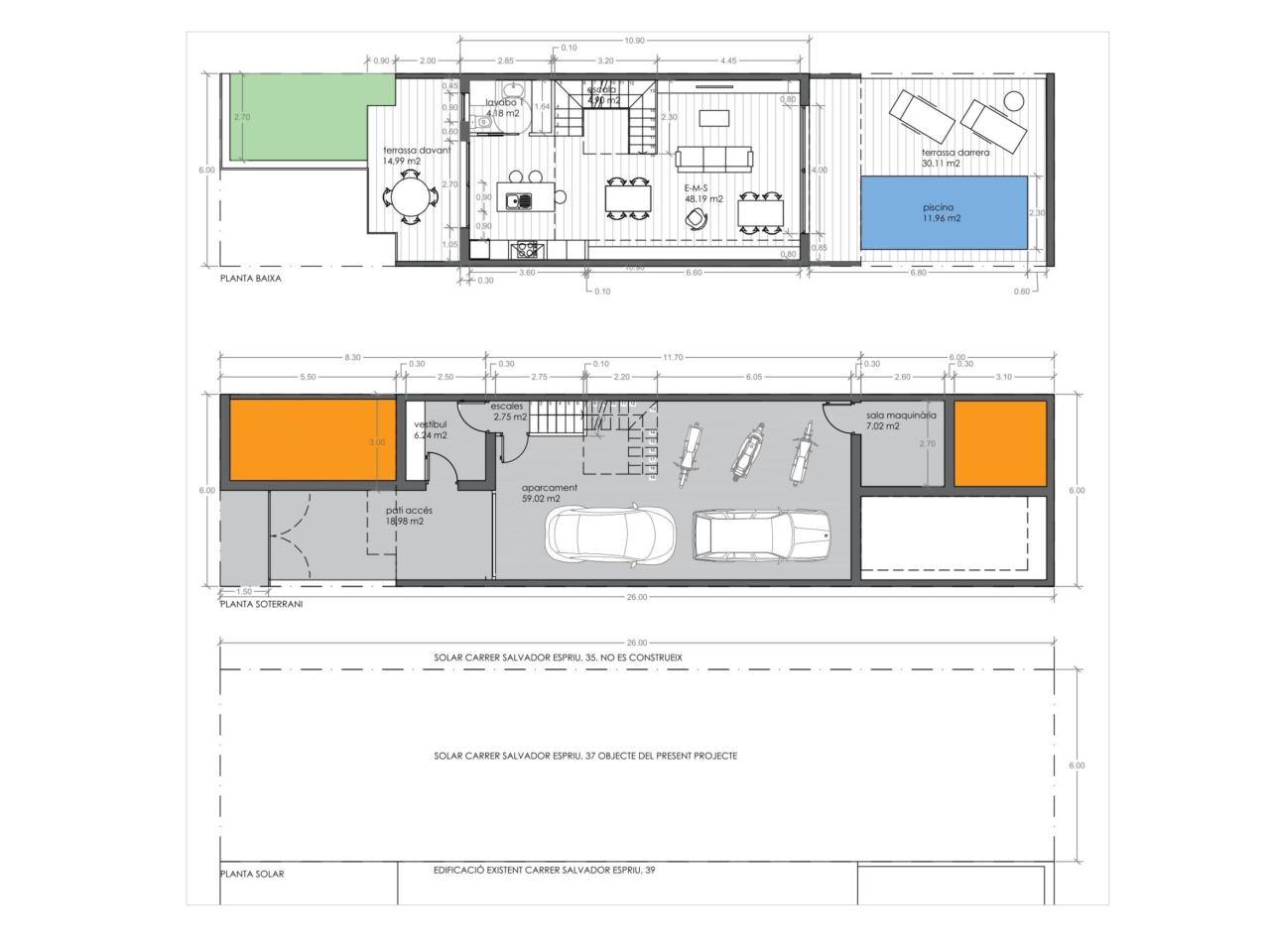
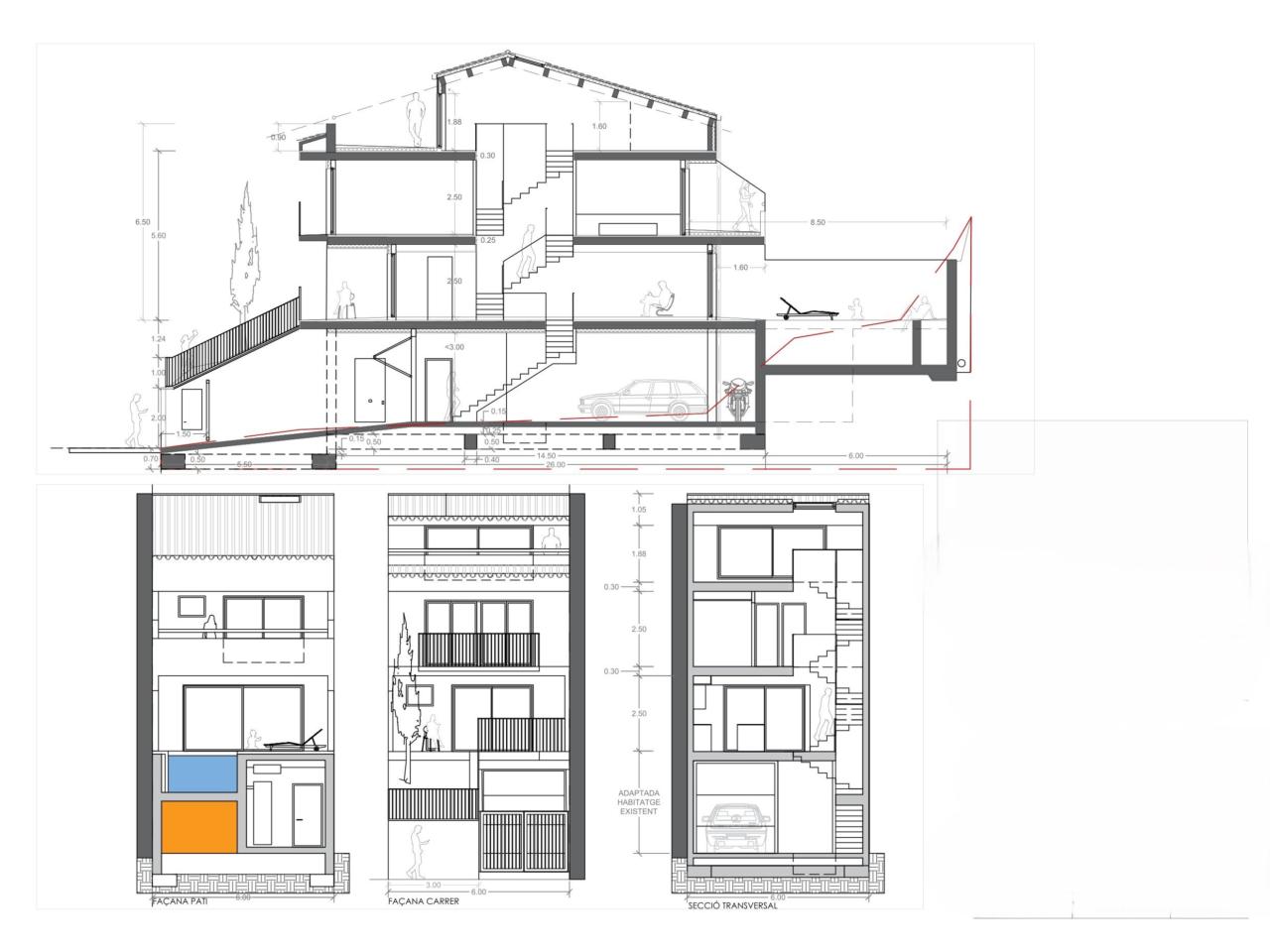
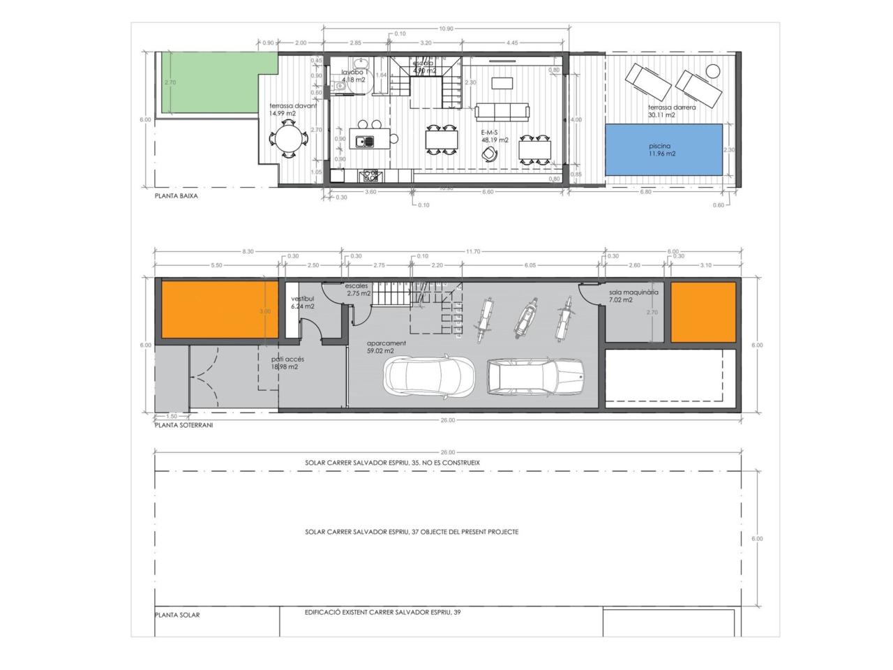
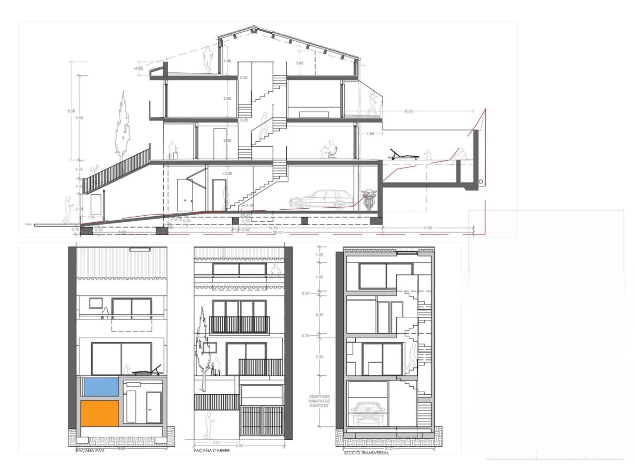
Descubre esta espectacular vivienda de 280 m², con amplios espacios, acabados de calidad y un diseño pensado para el confort y la eficiencia energética. La casa se distribuye en tres plantas más sótano. En el sótano encontramos un amplio garaje de 60 m² y la sala de máquinas. La planta principal ofrece una luminosa sala de estar con salida a terraza, una cocina abierta al comedor con acceso a otra terraza y un baño completo. En la segunda planta se ubican tres dormitorios dobles, uno de ellos en suite con vestidor, baño privado y terraza, además de un segundo baño completo. La planta superior cuenta con una estancia diáfana abuhardillada de aproximadamente 25 m² con salida a terraza, perfecta como despacho, sala de juegos o zona de relax.
La vivienda está equipada con aerotermia y suelo radiante, además de carpintería exterior de aluminio gris texturizado, persianas motorizadas y pavimentos porcelánicos en interior y exterior. Es una propiedad 100% eléctrica y preparada para la instalación de ascensor.
Detalles que marcan la diferencia:
- Aerotermia y suelo radiante.
- Carpintería exterior de aluminio gris texturizado y persianas motorizadas.
- Pavimentos porcelánicos en interior y exterior.
- Vivienda 100% eléctrica y preparada para instalación de ascensor.
Actualmente se encuentra en construcción, con entrega prevista para marzo de 2026.
El cumplimiento de la ley 3/2917 del 13 de febrero de 2018 del CÓDIGO CIVIL DE CATALUNYA, por el que se aprueba el Reglamento de información al consumidor en la compraventa y arrendamiento de viviendas en CATALUNYA, se informa al cliente que los gastos notariales, registrales e impuestos que le sean de aplicación (ITP o IVA AJD) y otros gastos inherentes a la compraventa no están incluidos en el precio. Precio aproximado: 688.200,00€
Leer más
-
Parking
-
Jardín
-
Calefacción
-
Aire acondicionado
-
Piscina
-
Terraza
-
Superficie útil
220 m2
-
Cert. energética